NFU Technology Park, Zone C
Shenzhen, China2009-2012
Client:
NanShan District Government
Project Data:
628,000 sm total area, Zone C – 78,200 sm building area
Entrepreneurship & district service center
Project Description:
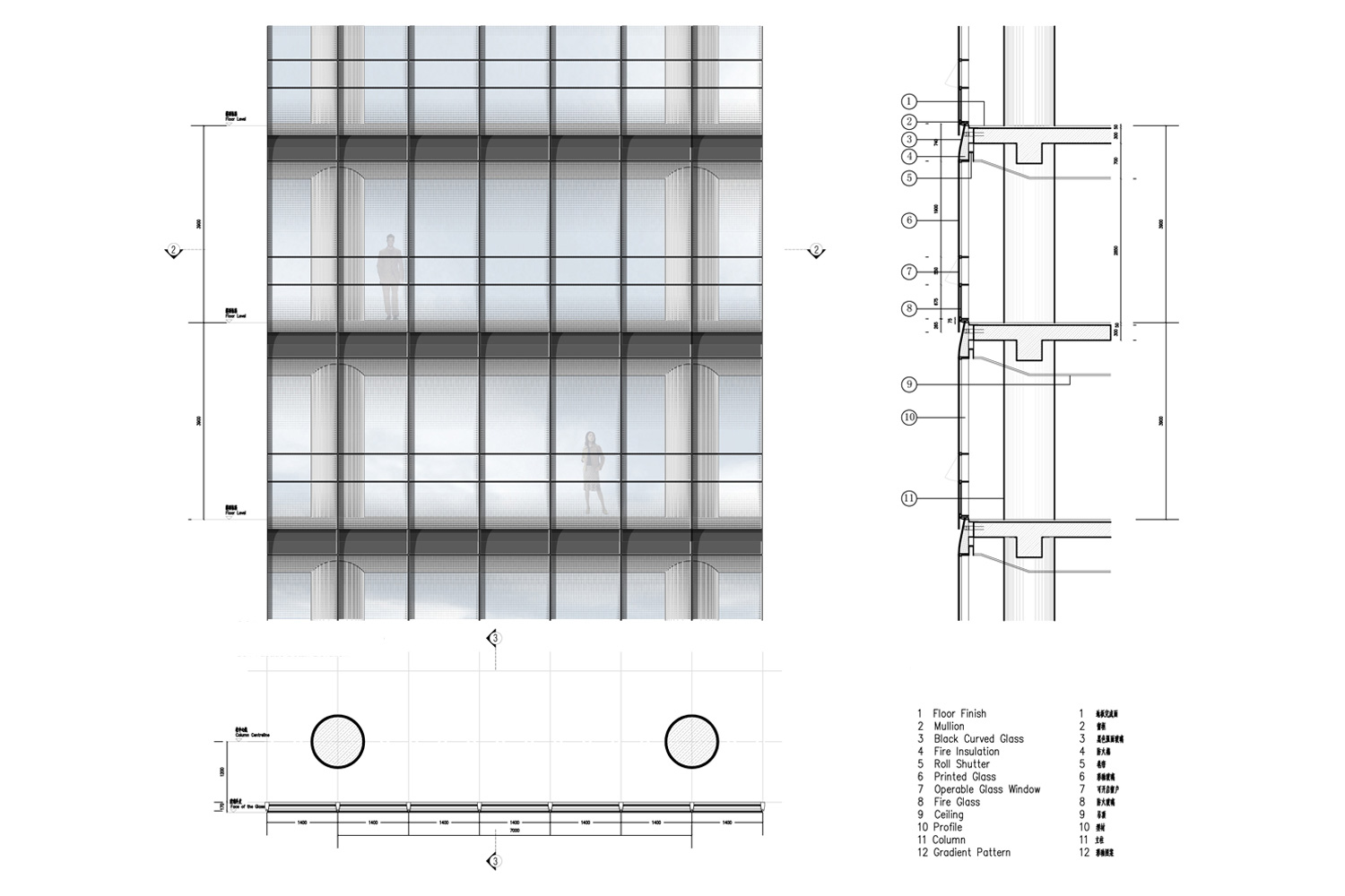
Located within the rapidly developing Nanshan Dashahe Innovation Corridor in Shenzhen, the project design comprises R&D office and light manufacturing, IT incubator space, outsourcing facilities, and business support services within a total building area of 628,000 sm on a 15.2 hectare site. The design concept was awarded 1st prize in an international design competition.
The concept master plan provides an enhanced environment for technological innovation and discovery, creating an incubator and educational platform for entrepreneurs, researchers and students. The planning strategy respects the site’s existing natural topography and is organized along the framework of a city - comprised of various programmatic ‘districts’ framing a central green space. The four major ‘districts’ are comprised of the following, and directly reflect their specific programmatic functions:
‘District of Inspiration’ - Entrepreneurship Incubator Center
‘District of Investigation’ - Medical Instruments & Meters
‘District of Knowledge’ - Entrepreneurship and Industrial District Service Center
‘District of Realization’ - Outsourcing Services
Underlying this architectural and planning approach is the acknowledgement that more often, new scientific and technological endeavors seek inspiration and answers directly from nature. Combinations of active and passive environmental design strategies are incorporated providing reduced operating costs, energy savings and materials conservation. The design features unique yet highly flexible architectural solutions addressing specific programmatic requirements they are intended to serve, which together constitute districts creating a vibrant city - a ‘City of Discovery, Opportunity and Reward’.
—
International Design Competition - First Prize
深圳南方大学新校区科技园, C区
深圳,中国
2009-2012
客户:
深圳市南山区政府
项目数据:
628,000平方米,C区-78,200 平方米,创业园区和工业区服务中心。
项目介绍:
项目位于深圳市南山区快速发展的南山大沙河创意走廊。项目涵盖628,000平方米建筑面积,修筑在15.2公顷的基地上:包括科研型办公,轻工业生产,IT软件开发基地,外包产业公司和商业辅助设施等。该设计荣获了建筑国际竞赛的一等奖。
项目的设计规划为科研创新和探索发现提供了一个良好的环境,为创业者,研究人员和学生提供了一个研发和教育的良好平台。建筑的规划理念体现了建筑师对基地地形现状和城市肌理的尊重。多种不同的项目采用一种近似于城市街区的型式围合出中央的园林。4个主要的街区组团直接地反映出他们不同的功能特质,并在以下说明中进一步体现:
灵感街区-创业产业基地
投资街区- 医疗设备仪器
知识街区- 创业园区和工业区服务中心
实践街区- 产业外包服务
新型科技和产业的发明者和创造者们的灵感源泉是自然,这同时也是本设计中建筑和规划赖以依托的根本。主动式和被动式的环境节能方式在该方案中被应用,来减少建筑的运营成本,节约能源和节省建筑用材。建筑外观设计独特,但却充分满足不同用途的建筑对空间要求的灵活性,加之不同的组团划分使建筑整体形成了一个充满活力的城市- 一个不断探索的,充满机遇和挑战城市。
—
国际设计竞赛一等奖












