Park City
Moscow, Russia2009
Client:
Park City Investments
Project Data:
4 buildings, 40,000 sm building area
200 residential units
Project Description:
Luxury high rise residential towers and mid-rise condominium buildings are the key components of a master planned urban riverfront development, with specific buildings and groupings designed by a select group of internationally recognized architects. The superb, center city site is located along the Moskva River directly across from the Moscow City business center development and directly adjacent to the Ukranija Hotel.
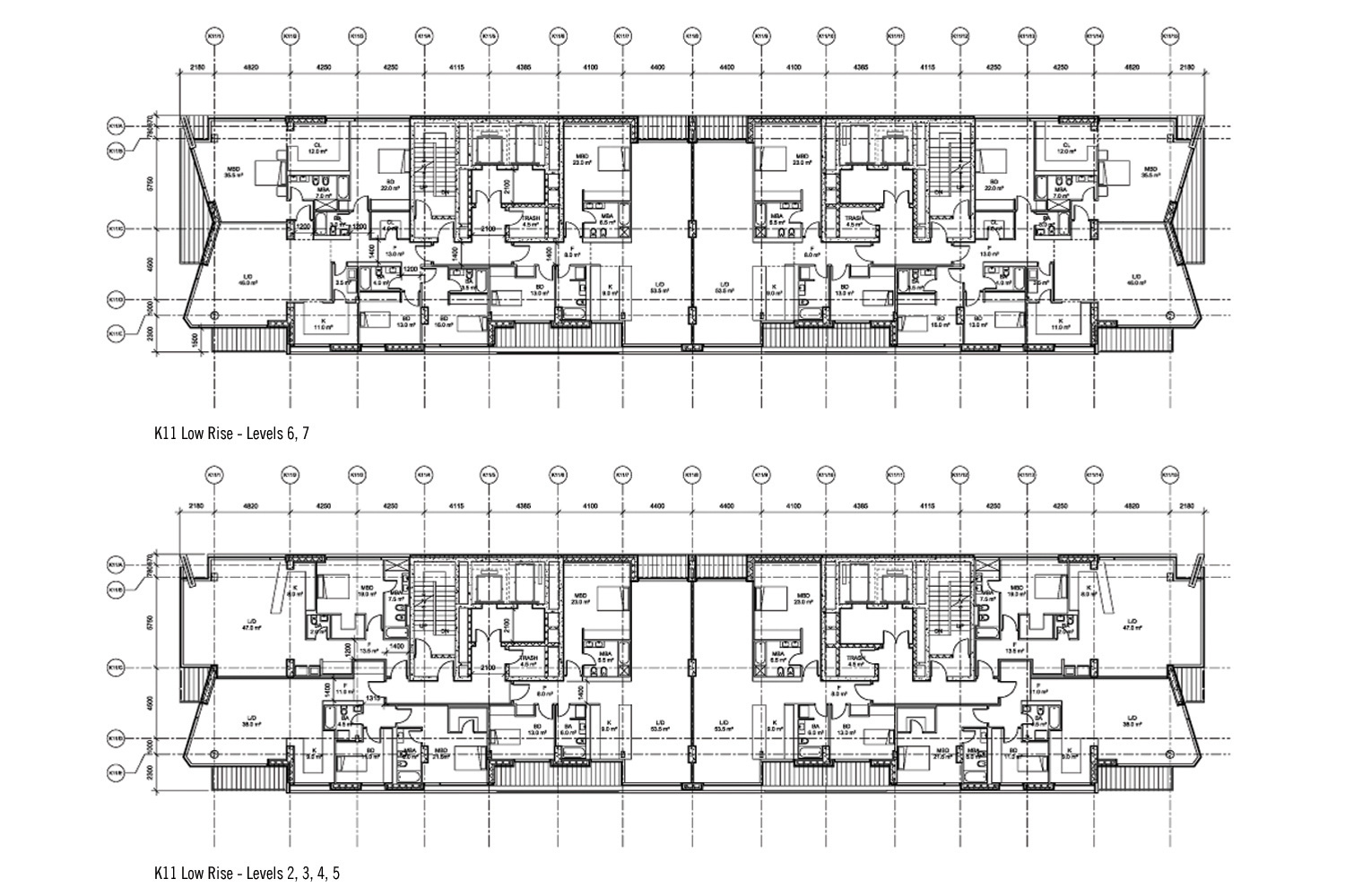
The mid-rise buildings follow the prescribed building envelope of the urban design guidelines, reinforcing the defined edge of the main boulevard. A maximum height of eight floors was permitted, with generous penthouse units designated for the top levels. The massing responds to the design guidelines but also introduces new diagonal relationships with the “Diagonal” boulevard towers. A thoughtful composition of materials and integral balconies animate the façade, featuring a provision of operable glass panels enabling the balconies to be utilized year round.
The high rise towers step down in conformance with the massing outlined in the urban design guidelines. With a maximum of four units per floor, the buildings maximize view potential while providing generous living space and amenities. A combination of stone and glass defines the exterior expression, creating a diverse pattern of reflection, transparency and opacity. The towers faceted shapes encourage dramatic views of the city, and will vary in color and reflection depending upon the time of day and season of the year.
莫斯科花园城
莫斯科,俄罗斯国
2009
客户:
花园城投资公司
项目数据:
4栋建筑,40,000平方米, 200 户住宅。
项目介绍:
奢华的高层住宅,和多层住宅散落在莫斯科滨河开发项目的总体规划中。基地位于城市中心区,沿着横穿莫斯科金融中心区的莫斯科河,并临近著名的乌克兰酒店。
多层住宅的平面尊旬着预先界定的城市规划控制线,界定出主要林荫道路的两边。建筑遵守着8层的最高控制限,顶楼设置宽敞的屋顶奢华住宅。虽然建筑的体量界面遵守着规划控制范围,但是在设计中引入了变化的切角,同林荫道旁的“切角”塔楼相呼应。
高层住宅高低错落呼应着规划设计的要求。一层4户的平面布局使得每一单元都能达到景观最大化,并拥有宽敞的起居空间和便利的辅助空间。石材和玻璃的完美结合表达出一款与众不同的里面,同时在光线的影响中创造出丰富多样的变化,反景,通透和不透明的效果。塔楼立面细部充满不同的小面,给城市带来戏剧般的效果。随着季节的更替,一天中阳光的变化,建筑立面产生出丰富的色彩和光影的变化。












